北京众得利厨房设备有限责任公司官网,欢迎您!
设计作品
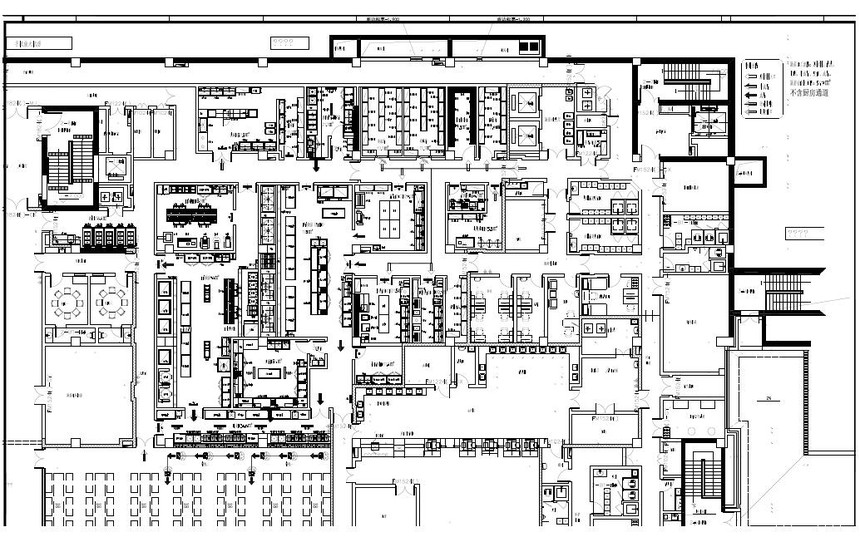
医院食堂厨房设备平面布置图
医院食堂厨房设备平面布置图