北京众得利厨房设备有限责任公司官网,欢迎您!
设计作品
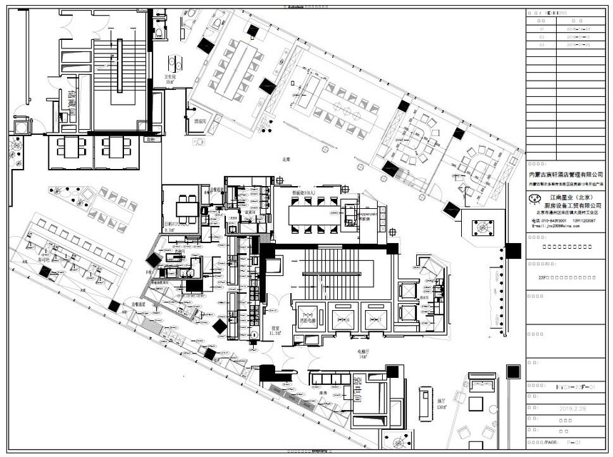
日餐厨房平面布置图
日餐厨房平面布置图